Refine Search

27304 Gulf Road, Unit B, Orange Beach, AL 36561

$5,895,000
  • 27304 Gulf Road, Unit B, Orange Beach, AL 36561 Main Photo

20 Total Photos [Click to View All]

Active
BEDS4 BATHS5 full 1 half SQUARE FEET4,154 MLS#386394
STATUSActive PROPERTY TYPEResidential - Condominium SUBDIVISIONSouth Beach II

Property Description

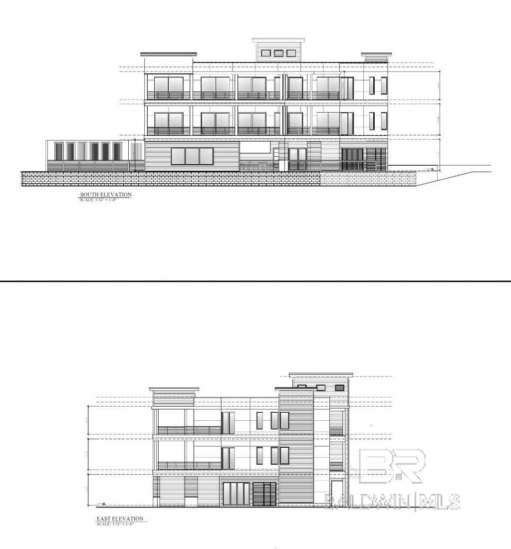
Every Day begins with a view at South Beach II. Discover the unparalleled coastal elegance in this Brand-New Pre Construction in one of the most unique locations that Orange Beach has to offer!! You absolutely have to see this property to believe it!! These two Modern and Contemporary condominiums will offer two separate residential properties with front row seats with views of the Orange Beach Pass and the Gulf of Mexico/America and within steps of the beautiful beaches. Each Condominium offers 4 Bedrooms, and 5.5 Baths, large outdoor living area with Private pool for each residence, Outdoor Kitchen, Outdoor Shower, Private BBQ area, seven (7) parking spaces each, entertaining area, covered terrace, storage and so much more. Entering through your private elevator you will find a stunning hand designed staircase leading you to this exquisite residence that features all high-end finishes w/subzero and Thermador Stainless appliances, beautiful cabinetry, wet bar, linear gas fireplaces, 14' kitchen island with a waterfall feature, large pantry, porcelain tile flooring and marble, quartz and gorgeous finishes throughout. The views are unlimited from the interior with high impact doors and plenty of beautiful windows capturing the sunrises, beach goers and boating activity. Relax on your 14' deep balconies overlooking your private pool and the mesmerizing views of the Gulf and the Pass that is waiting for you and your family. This unique and Modern Residence will make a Fabulous Investment Opportunity for Short Term Rentals. Each Condo features 4154 sq. ft. of Heated and Cooled space, 1944 sq ft. of covered porches, patio and entertaining area, 1134 sq ft. Terrace, Double Garage has 662 sq. ft. Rental Projection, Floor plans, and additional photos under Documents. Buyer and or Buyers Agent to perform all due diligence. Preconstruction Contracts available for reservation.*Need Not be Built Buyer to verify all information during due diligence.

27304 Gulf Road, Unit B | MLS# 386394

This condo located at 27304 Gulf Road, Unit B, Orange Beach, AL 36561 is currently listed for sale with an asking price of $5,895,000. This property was built in 2025 and has 4 bedrooms and 5 full and 1 partial baths with 4154 sq. ft. Gulf Road, Unit B is located in the South Beach II subdivision. Search South Beach II real estate on kelseydavis.gobellator.com today.

Property Features

Property Type: Residential - Condominium
Cooling: Central Electric (Cool)
Fireplaces: 1
Garage: 2
Heating: Central
Lot Size: 1.06 Acres
Property Type: Condominium
Stories: 1.0
Year Built: 2025

Amenities

Ceiling Fan(s)
Elevator
High Ceilings
Internet
Split Bedroom Plan
Storage
Wet Bar
Outdoor Kitchen
Outdoor Shower
Storage
Termite Contract
Gas Grill

Feature Descriptions

Accessibility: Wheelchair Accessible Property
Appliances: Dishwasher, Disposal, Dryer, Ice Maker, Microwave, Gas Range, Washer, Wine Cooler
Community Features: Internet, Landscaping, Wheelchair Accessible, Water Access-Deeded
Condo Complex: South Beach II
Construction Materials: Concrete Board, P-I-P Reinforced Concrete, Fortified-Gold
Days on Site: 194
Exterior: Concrete Board, Concrete
Fireplace: Gas Log, Living Room
Flooring: Tile
HOA Y/N: Yes
Lot: 1-3 acres, Corner Lot, Level, Waterfront
Lot Dimensions: 1.06 acre(s)
Swimming Pool: Yes
Water: Orange Beach Water Auth
Waterfront: Gulf Front

Room Sizes

Primary Bedroom: 16.4 X 16 Level - Main
Bedroom 2: 18 X 12.6 Level - Main
Bedroom 3: 113 X 12.7 Level - Main
Bedroom 4: 13 X 14 Level - Main
Kitchen: 21.5 X 24 Level - Main

Local Schools

High School: Orange Beach High
Middle School: Orange Beach Middle
Elementary School: Orange Beach Elementary

Listed By / Shown By

Listed By

Agency Name: Vicki Lynn Real Estate
Agency Phone: 251-752-7571

Shown By

Agent Name: Kelsey Davis
Agent Phone: (251) 510-8103
Agency Title: Bellator Real Estate

IDX logo

Estimate Your Payment

Estimated Payment

$ 29,994.18 per month $28,274.80 Principal & Interest $0.00 Property Tax (data not provided by mls) $1,719.38 Homeowner's Insurance

Change Payment Information

%
years/fixed
yearly
yearly (est.)
(Payments are an estimate and may vary by lender)

Login to My Homefinder

Pixel